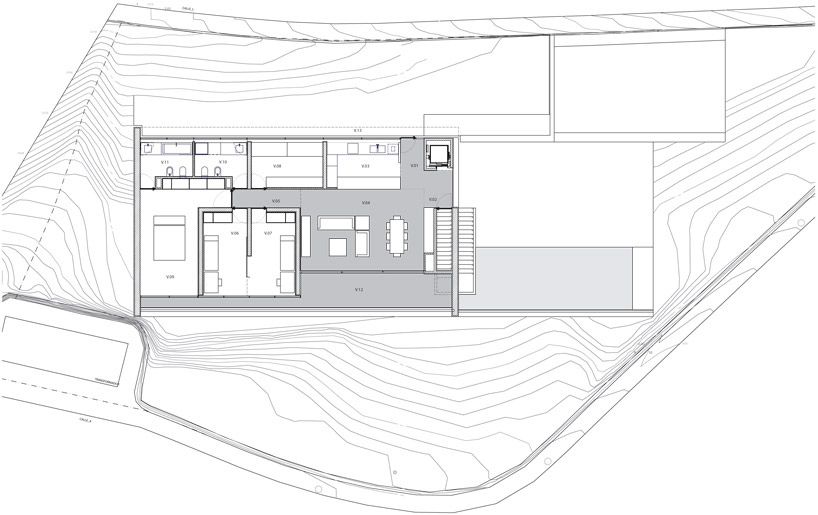
Con vistas al mar mediterráneo, la 'casa en el acantilado' se sitúa en una parcela de terreno abrupto en Calpe, Alicante, España. diseñado por Fran Silvestre Arquitectos, los espacios de vida de la residencia se distribuyen en cuatro plantas para reducir al mínimo los ajustes a la topografía. respetando los contornos naturales, la estructura está anclada en la piedra misma. el estuco de cal blanco recuerda la arquitectura tradicional de la zona. este detalle continúa en todos los planos, incluyendo paredes y superficies pavimentadas, la vivienda se unifica en medio de un telón de fondo de las montañas rocosas.
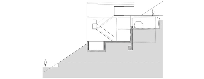
Puesta sobre una plataforma en el nivel más bajo, una terraza de la piscina se abre a la vista al espectacular del mar. una escalera al aire libre une al exterior de hormigón monolítico que permite cambiar los niveles mientras contemplan el paisaje. antes de pasar a través de un portal dentro de la pared exterior, un aterrizaje permite un momento de pausa con vistas. dando la vuelta de la esquina, continúan su ascenso dentro de un área protegida bajo los más altos pisos de la casa. La sala de estar, comedor, cocina y dormitorios están situados en el nivel superior. vistas panorámicas se ofrecen desde una terraza que corre a lo largo de la placa del piso. El pasillo que comunica a la entrada principal está tallada en un espacio entre la casa y el paisaje acantilado escarpado.













No hay comentarios:
Publicar un comentario